You are viewing information on a past auction. Items shown are no longer available.
Click here to view upcoming auctions.
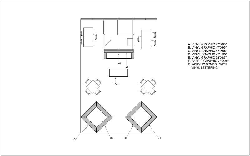
20X30 EXHIBIT DISPLAY BOOTH (TO BE SOLD IN ABSENTIA - LOCATED IN SALT LAKE CITY, UT)